Sprzedam lub wydzierżawię O.W.CZAPLA 76-015 Mostowo 7
Mostowo gm. Manowo Pokaż na mapie ›
Odświeżone: Wtorek, 28 Październik, 2025 09:53
4 380 000 zł
498 zł/m2
Szczegóły ogłoszenia
- Kategoria: Działki i grunty / Sprzedaż
- Pow. działki:8798 m2
- Rodzaj działki:Rekreacyjna
- Sprzedaż:Bez pośredników
- Cena: 4 380 000 zł / 498 zł/m2
Opis oferty
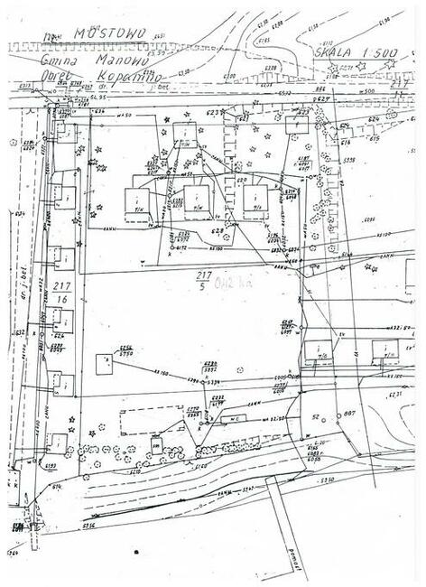
Sprzedam O.W.Czapla 76-015 Mostowo Gmina Manowo . Powiat Zachodnio Pomorski.Powierzchnia 8798 met. kw. Dz. nr 217/5 i 217/22 obręb Kopanino.
Media.
Prąd- siła.
Woda.
Kanalizacja.
Wszystkie media na terenie.
Teren przylega bezpośrednio do J.Rosnowskiego.Długość lini brzegowej ok. 140 mtr. 19 domków drewnianych. Miejsc noclegowych 120. Świetlica 90 mtr. kw.Kontener sanitarny /natryski 3 sz,t 2 szt. umywalki , Wc 2 kabiny , suszarnia ,magazyn blaszany.Możliwość zabudowy szeregowej lub domków wolno stojących okoł 26 szt.Strona www.czapla.osrodek.pl Teren położony 19 km od Koszalina , 28 km od Mielna, 70 mtr od drogi nr 11 .
Sprawdź zainteresowanie tym ogłoszeniem
Wyświetlenia
Data dodania
Ostatnio widziany
Obserwujących
Wysłane zapytania
Odsłony telefonu
Tadeusz
Konto prywatne
Na Lento.pl od 17 maj 2016
Strona użytkownika
- Wypromuj ogłoszenie
- Zgłoś naruszenie
- Drukuj ulotkę
- Edytuj/usuń ogłoszenie
- Udostępnij ogłoszenie
- Dodaj na Facebook







